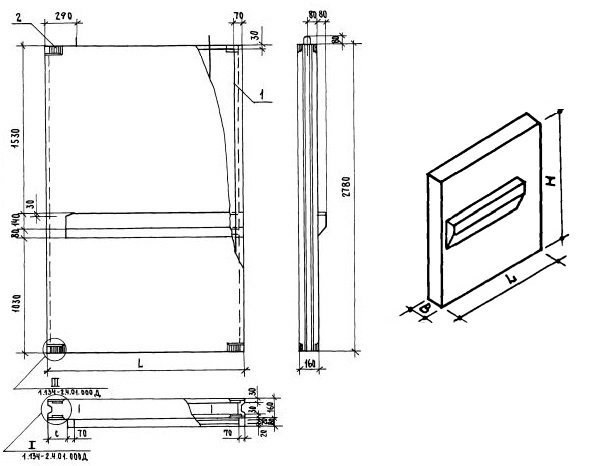
СБЛ-19.28.1-т-1

Чертеж изделия:
Чертеж СБЛ-19.28.1-т-1
Характеристики изделия:
ПараметрЗначение
Длина1940 мм
Ширина160 мм
Высота2780 мм
Масса2180 кг
Нормативный документСерия 1.134-2

Блоки внутренних стен толщиной 16 см и вентялиционные блоки для жилых зданий высотой 1-4 этажа и общественных зданий высотой 1-3 этажа по Серии 1.134-2.

СБЛ-19.28.1-т-1  Стеновой блок лестничных клеток.